Jose Martinez

Realty ONE Group Nest
(978) 387-2318

18 Winthrop Ave
Lawrence, MA

Well-maintained four-unit multi-family property offering a fantastic investment or owner-occupant opportunity. Each unit offers spacious layouts with generous bedrooms, providing comfortable living spaces. The property has been consistently cared for, reflecting pride of ownership. Large porches offer great outdoor space for relaxing or entertaining, while off-street parking adds convenience and value. Ideally located a short distance to many area amenities and with easy access to Route 495!

Property Details

  • $1,100,000
    List Price
  • 73497185
    MLS Number
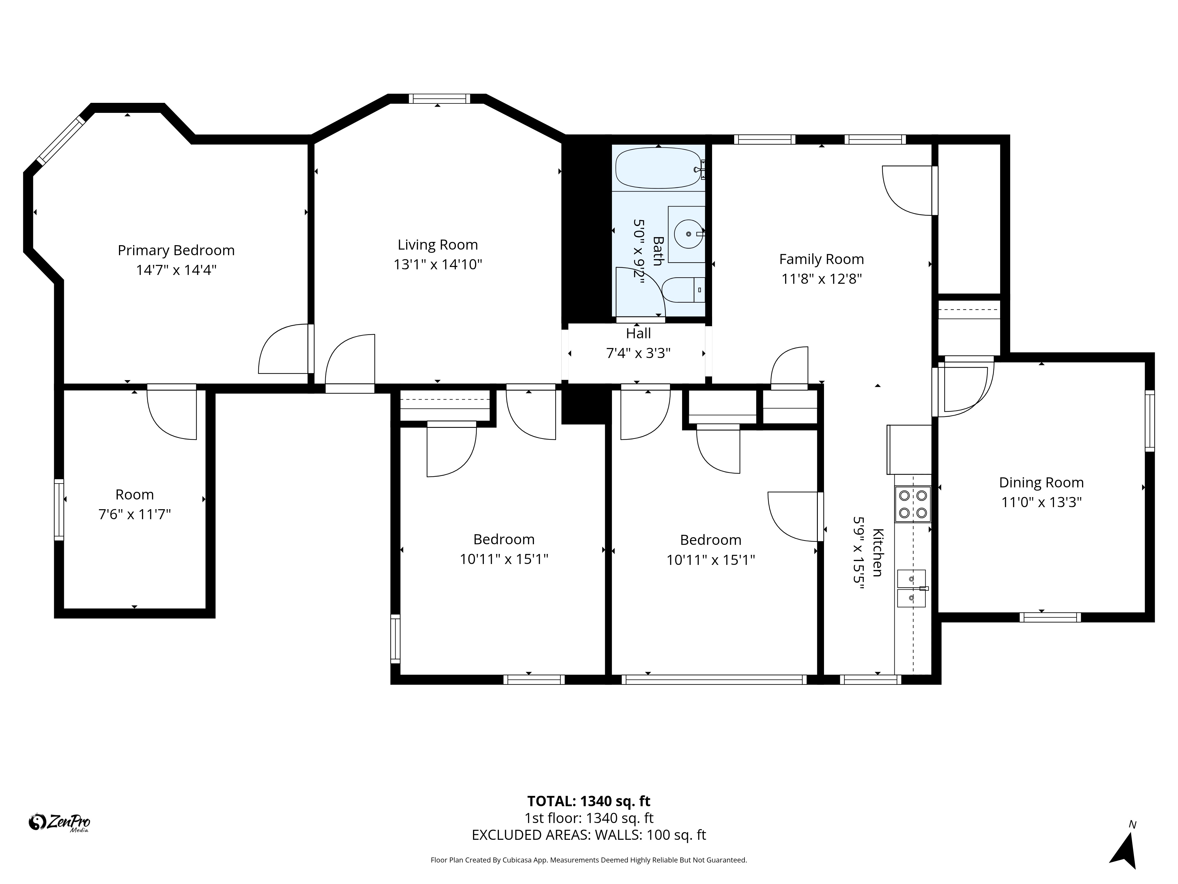
  • 10
    Beds
  • 3
    Baths
  • 4,641
    Square Feet
  • 1890
    Year Built
  • 6975
    Lot Size

Presented By

Jose Martinez

Associate Broker
Contact
Realty ONE Group Nest
Send a Message